
![]()
Program/ Lakefront Dwelling
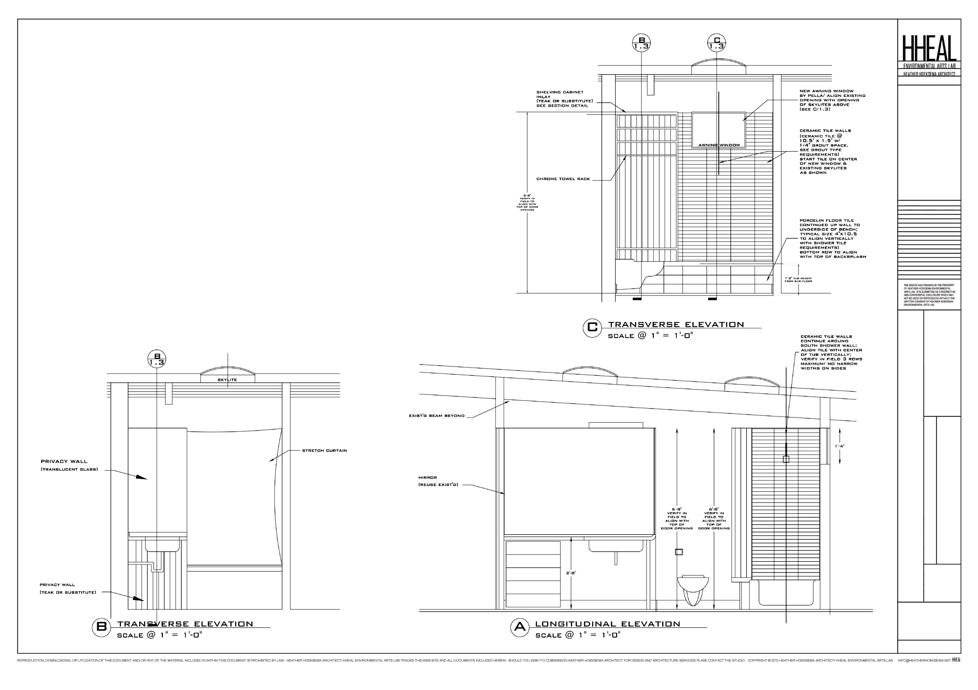
Concept/ Strategic material use
Materials/ Ceramic, ston, wood, steel
Location/ Grand Haven, Michigan
Built/ 2010

![]()
This redesign project involved renovation of the second story of a Chicago row house. The new design integrated the kitchen and the living room and dining area to open up the space within the existing narrow width. The kitchen layout became larger and shaped more fluidly so two people were able to cook at one time and engage with guests during dinner parties.
Originally designed by an architect for his family, this lakefront bungalow utilizes warm material use with clean simple spaces. Our redesign work involved custom interiors. We developed drawings to the 1/32" accuracy including precise tile layout diagrams to limit material waste and decrease cost through a mindful cutting and fitting process. The final product blended the new interiors with the exhisting historical bungalow aesthestic.
• Local custom fabrication
• Natural material use
• Natural light maximization
• Material use maximization
![]()







